2 Michaela Street, Pictou, Nova Scotia B0K 1H0

Listed for:
$420,000
2 beds
2 baths
Listed 19 days ago
House for rent: 2 Michaela Street, Pictou, Nova Scotia B0K 1H0

View all 50 photos

About

Head east on Church St toward Market St, Continue onto Denoon St. Continue onto Beeches Rd. Destination will be on the left Welcome to The Lily - Effortless living by the sea. Discover your perfect year round retreat at RoseView Estates, a new subdivision in picturesque Pictou. Designed with comfort and convenience in mind, "The Lily" is ideal for remote workers and those looking for a worry-free, all-inclusive lifestyle in a charming seaside town - with no condo fees. Located just minutes from Pictous historic waterfront, hospitals, boutique shops, and delightful dining spots, RoseView Estates offers the perfect blend of small-town charm and modern sophistication. Each home is built with Insulated Concrete Form (ICF) foundations for superior strength, energy efficiency, and year-round comfort. Why youll love living here? Bright, spacious homes: Open-concept layouts, 9'4" ceilings, and oversized windows flood your home with natural lightperfect for creating a calming workspace or enjoying peaceful mornings with a cup of coffee. Designer Kitchens: Featuring custom cabinetry, premium countertops, and sleek stainless-steel appliances, these kitchens make cooking a pleasure, whether you're whipping up a quick lunch or hosting friends. There is an option to add an 18'x24' garage to suit your needs. RoseView Estates makes life simple, stylish, and serene. Here, you'll enjoy the charm of coastal living without the upkeep. (id:27476)

Property Highlights

MLS® Number
202604531
Type
Single Family
Community Name
Pictou
Ownership Type
Freehold
Land Size
0.1617 ac

Building

Building Type
House
Storeys
1.00
Square Footage
1260 sqft
Bathrooms Total
2
Bedrooms Above Ground
2
Bedrooms Total
2
Amenities
Playground, Public Transit, Shopping, Place of Worship, Beach
Exterior Finish
Vinyl
Fireplace Present
No
Basement Type
None
Basement Features
Building Heating Type
Heating Fuel
Building Cooling Type

Utilities

Water
Municipal water
Utility Sewer
Municipal sewage system

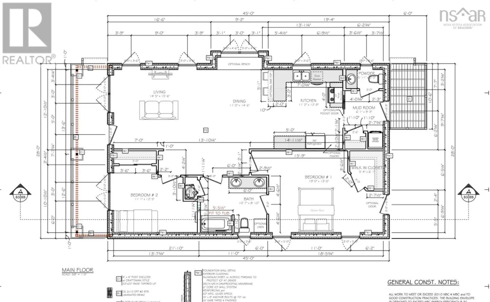
Room Layout

Living room
Main level
14.5x15.6
Dining room
Main level
11x14.6
Kitchen
Main level
11.2x12.8
Mud room
Main level
6.1x9.3
Bedroom
Main level
19.0x13.0
Bath (# pieces 1-6)
Main level
10.7x8.10
Bedroom
Main level
11.1x12.5
Bath (# pieces 1-6)
Main level
5.11 x 3

Location

Learn more about this property
Listing provided by:
The Agency Real Estate Brokerage
MLS® number:
202604531
Agent:
Cait Banks
*Indicates required field
Name is required
Email is required
Please enter a valid phone number (e.g., 416-111-1111).

Street Spotlight - For sale