59 Water Street Street, Pictou, Nova Scotia B0K 1H0

Listed for:
$549,000
5 beds
5 baths
Listed 15 days ago
House for rent: 59 Water Street Street, Pictou, Nova Scotia B0K 1H0

View all 42 photos

Learn more about this property
Listing provided by:
EXP Realty of Canada Inc.
MLS® number:
202515942
Agent:
Adam Delorey
*Indicates required field
Name is required
Email is required
Please enter a valid phone number (e.g., 416-111-1111).

About

From Rotary, take W River road, then right on alfred street, straight on water street Iconic downtown Pictou building, home to the beloved Mrs. MacGregors Shortbreads, now available for sale. This rare mixed-use property offers a unique blend of commercial and residential space in one of Nova Scotias most charming seaside towns. The main level features a well-established commercial storefront with high foot traffic and excellent visibility on historic Water Street. Upstairs, you'll find a spacious five-bedroom residential unit with stunning views overlooking Pictou Harbour. Whether youre looking for a live/work opportunity, an income-generating rental, or simply a smart investment, this property delivers. The residential space offers flexibility for short-term vacation rentals, long-term tenants, or personal use. A new marina is currently under construction just steps from the building, poised to increase both waterfront activity and overall property value in the coming year. With strong tourism appeal, a central location, and exceptional character, 59 Water Street is the perfect opportunity for business owners, investors, or anyone seeking to be part of Pictous vibrant waterfront revitalization. (id:27476)

Property Highlights

MLS® Number
202515942
Type
Single Family
Community Name
Pictou
Ownership Type
Freehold
Land Size
0.119 ac

Building

Building Type
House
Storeys
3.00
Square Footage
5949 sqft
Bathrooms Total
5
Bedrooms Above Ground
5
Bedrooms Total
5
Amenities
Golf Course, Park, Playground, Public Transit, Shopping, Place of Worship
Exterior Finish
Wood shingles, Vinyl
Fireplace Present
No
Basement Type
Full (Unfinished)
Basement Features
Building Heating Type
Heating Fuel
Building Cooling Type
Heat Pump

Utilities

Water
Municipal water
Utility Sewer
Municipal sewage system

Room Layout

Living room
Second level
15.10x17.5
Dining room
Second level
14.3x16.6
Kitchen
Second level
11.10x13
Primary Bedroom
Second level
13.3x17.1
Bath (# pieces 1-6)
Second level
9.9x8.8
Bath (# pieces 1-6)
Second level
6.6x9.3
Bedroom
Third level
16.4x21.5
Bedroom
Third level
18.1x12.8
Bedroom
Third level
8.9x18.9
Bedroom
Third level
9.10x18.9
Bath (# pieces 1-6)
Third level
9.10x9.7
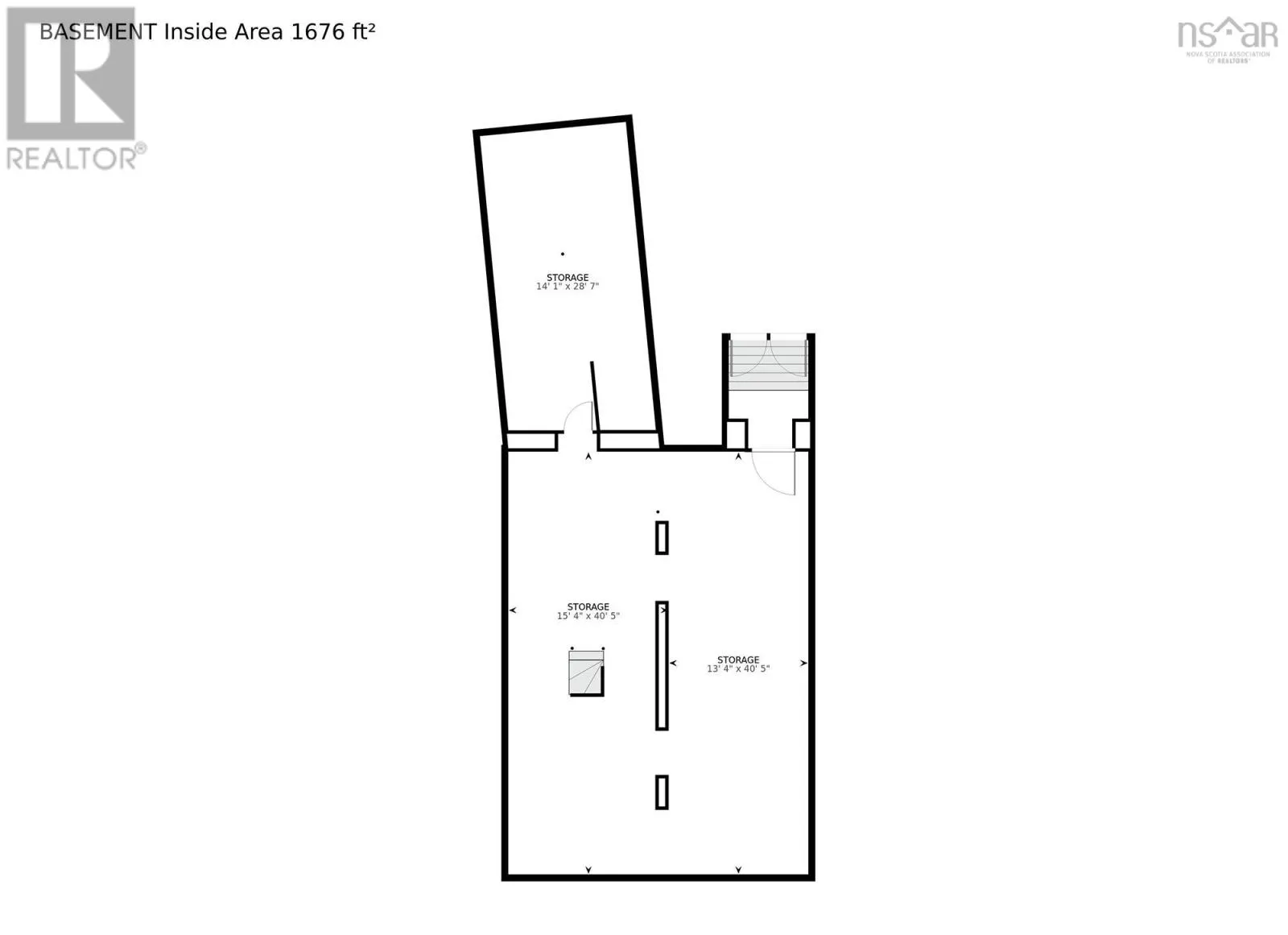
Storage
Basement
28.8x40.5
Storage
Basement
14.1x28.7
Other
Main level
20.5x17.9
Other
Main level
8.9x17.11
Other
Main level
13.8x24.1
Foyer
Main level
5.6x4.9
Storage
Main level
5.8x4.7
Utility room
Main level
4.9x3.11
Bath (# pieces 1-6)
Main level
6.4x4.8
Bath (# pieces 1-6)
Main level
5.9x6.0
Kitchen
Main level
16.6x16.2
Storage
Main level
15.4x10.1

Location

Community Spotlight: Homes For sale in Your Neighborhood