68 Cottage Street, Pictou, Nova Scotia B0K 1H0

Listed for:
$579,900
4 beds
2 baths
Listed 64 days ago
House for rent: 68 Cottage Street, Pictou, Nova Scotia B0K 1H0

View all 40 photos

About

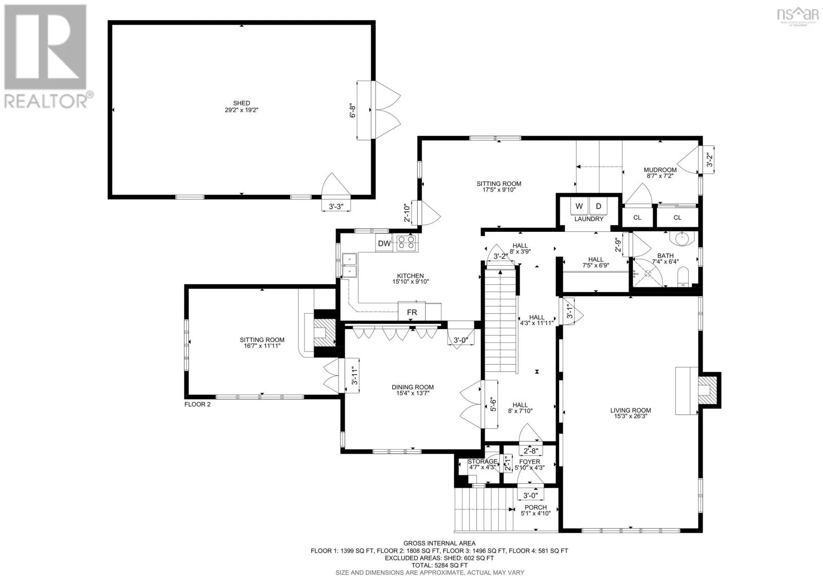
From Pictou rotary, take West River Rd, left onto Alfred St, right onto Cottage. Property is on left Discover timeless charm and historic elegance in this stunning 2.5-story home at 68 Cottage Street. Originally built in 1890 by the original owners of the renowned Pictou Shipyard and thoughtfully rebuilt in 1940, this residence offers a unique blend of heritage and modern comfort. Set on over one acre on a corner lot, the home features striking cedar siding with classic brick accents and lush ivy adorning the front facade. Towering linden trees surround the estate, creating a serene and picturesque setting in a highly desirable neighborhood. Step inside to experience spacious, light-filled interiors with huge hallways and original hardwood floors beneath the laminate wood coverings on the main floor. The home boasts four generous bedrooms, two full bathrooms, and two versatile attic rec rooms, plus a secret room accessed through one of the bedrooms! Three cozy fireplaces and original iron radiators provide warmth and character throughout. Original windows, complete with dual panels that swing open from the inside, preserve the home's historic charm while flooding rooms with natural light. The expansive great room features custom built-in library shelving, and the formal dining room impresses with a full wall of built-in cabinetryperfect for entertaining. French doors on the staircase landing lead outside, where a balcony is begging to be built. Additional highlights include a large detached garage, insulated and wired with a wood stove, and a converted side entrance mudroom with a pellet stove that opens to the kitchen, blending functionality and comfort seamlessly. Recent renovations include fresh plaster and paint throughout, preserving the home's character while ensuring a move-in-ready experience. (id:27476)

Property Highlights

MLS® Number
202529427
Type
Single Family
Community Name
Pictou
Ownership Type
Freehold
Land Size
1.0573 ac

Building

Building Type
House
Storeys
2.50
Square Footage
3885 sqft
Bathrooms Total
2
Bedrooms Above Ground
4
Bedrooms Total
4
Amenities
Golf Course, Park, Playground, Public Transit, Shopping, Place of Worship, Beach
Exterior Finish
Wood shingles
Fireplace Present
Yes
Basement Type
Full (Partially finished)
Basement Features
Building Heating Type
Heating Fuel
Building Cooling Type
Wall unit, Heat Pump

Utilities

Water
Municipal water
Utility Sewer
Municipal sewage system

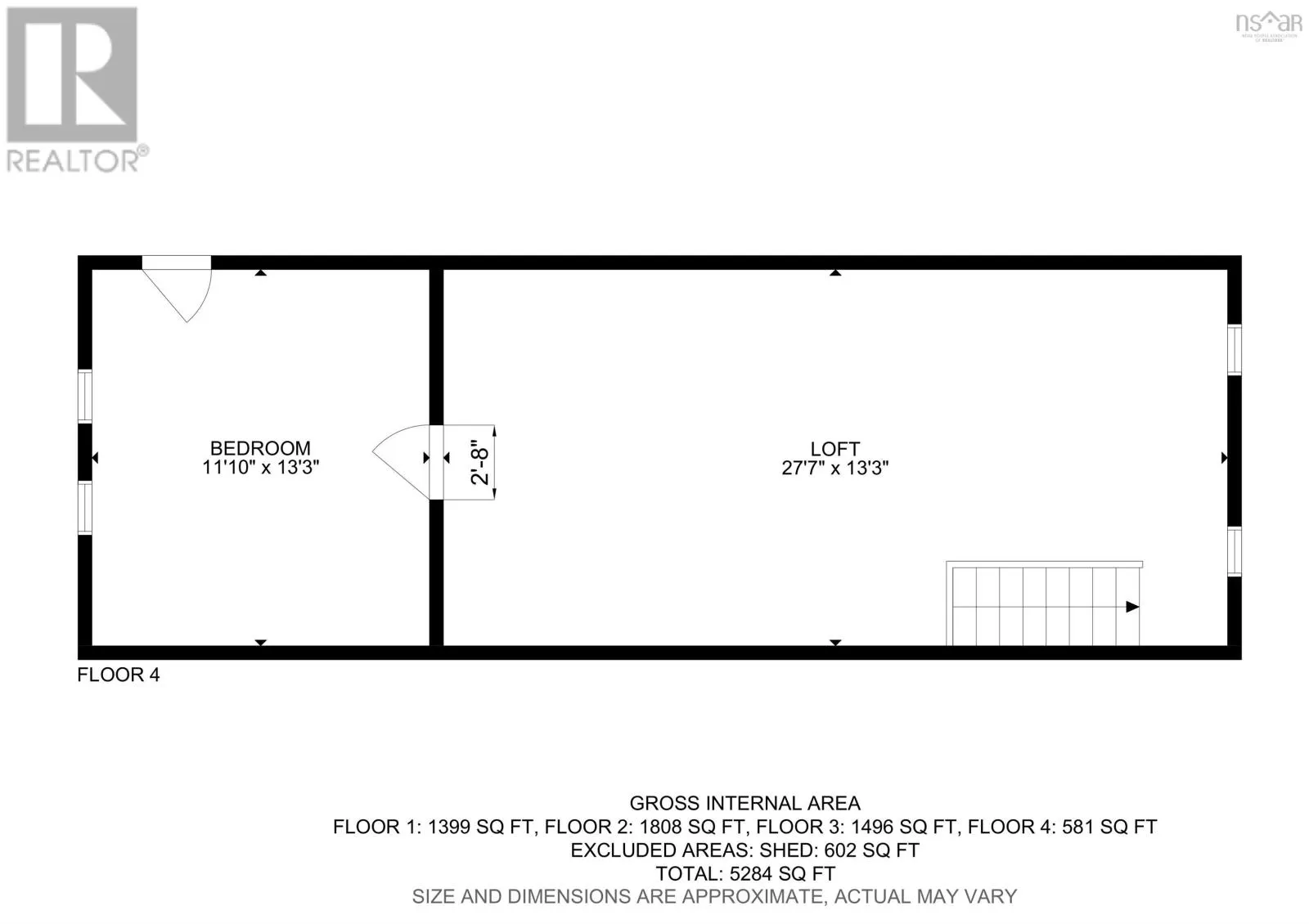
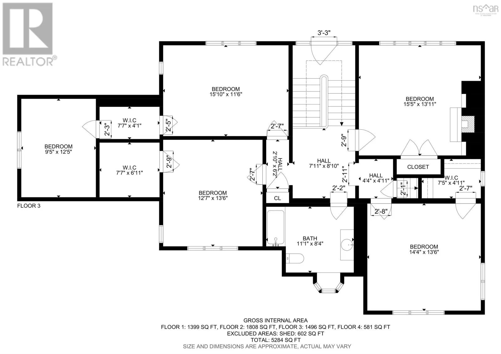
Room Layout

Bedroom
Second level
14.4 x 13.5
Bedroom
Second level
15.5 x 13.11
Bedroom
Second level
12.7 x 13.6
Bedroom
Second level
15.10 x 11.6
Games room
Second level
9.5 x 12.5
Bath (# pieces 1-6)
Second level
11.1 x 8.4
Recreational, Games room
Third level
27.7 x 13.3
Recreational, Games room
Third level
11.10 x 13.3
Foyer
Main level
17.5 x 9.10
Kitchen
Main level
15.10 x 9.10
Laundry / Bath
Main level
7.5 x 6.9
Bath (# pieces 1-6)
Main level
7.4 x 6.4
Dining room
Main level
15.4 x 13.7
Great room
Main level
15.3 x 26.3
Den
Main level
16.7 x 11.11
Porch
Main level
5.10 x 4.3
Mud room
Main level
8.7 x 7.2

Location

Learn more about this property
Listing provided by:
RE/MAX Nova
MLS® number:
202529427
Agent:
Lisa Fulton
*Indicates required field
Name is required
Email is required
Please enter a valid phone number (e.g., 416-111-1111).

Community Spotlight: Homes For sale in Your Neighborhood