60 Jarvis Street, Fort Erie, Ontario L2A 2S4

Listed for:
$2,300
0 beds
0 baths
Listed 118 days ago
60 Jarvis Street, Fort Erie, Ontario L2A 2S4

View all 1 photos

About

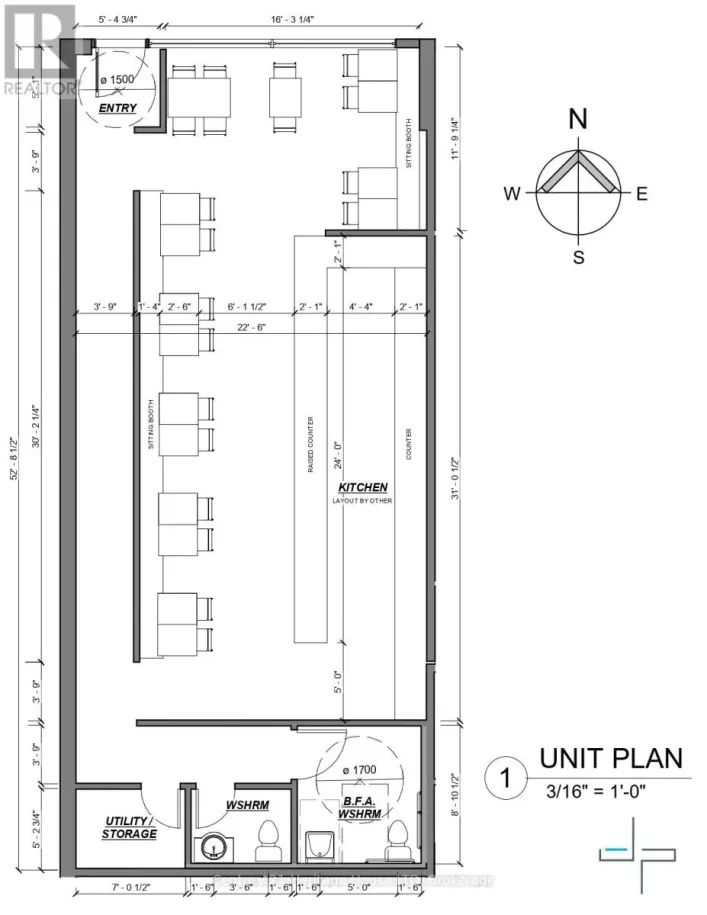
Cross Streets: CENTRAL AVE & NIAGARA PKWY. ** Directions: Central Avenue onto Jarvis Street. Great location for your professional office or retail business. Lease includes utilities, taxes, maintenance and building insurance. (id:27476)

Property Highlights

MLS® Number
X12600716
Type
Retail
Community Name
332 - Central
Land Size
84.65 x 121.71 FT

Building

Square Footage
1200 sqft
Amenities
Public Transit
Fireplace Present
No
Basement Type
Basement Features
Building Heating Type
Forced air
Heating Fuel
Natural gas
Building Cooling Type
Fully air conditioned

Utilities

Water
Municipal water

Location

Learn more about this property
Listing provided by:
RE/MAX NIAGARA REALTY LTD, BROKERAGE
MLS® number:
X12600716
Agent:
Carmine Guadagno
*Indicates required field
Name is required
Email is required
Please enter a valid phone number (e.g., 416-111-1111).