3 - 43 Jarvis Street, Fort Erie, Ontario L2A 2S3

Listed for:
$1,700
0 beds
0 baths
Listed 93 days ago
3 - 43 Jarvis Street, Fort Erie, Ontario L2A 2S3

View all 1 photos

About

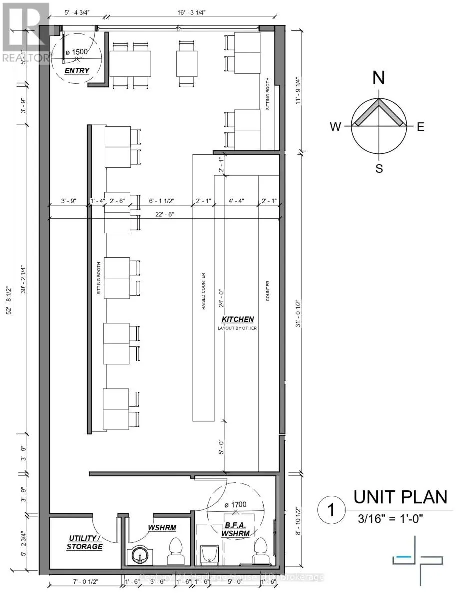
Cross Streets: Jarvis St & Niagara Blvd. ** Directions: On Jarvis St, just west of Klauck St, on the south side. Welcome to 43 Jarvis Street, Unit #3, situated in the bustling downtown Fort Erie, our retail space puts you at the epicenter of business, culture, and innovation. This has now become a prime location thanks to the Bridgeburg BIA Streetscape Improvements. This space features a three-compartment sink, is wired and plumbed for a dishwasher and and has three phase power for efficiency. With a zoning for C2 there are plenty of permitted uses, to include but not limited to, such as a bakery and other eating establishments, florist, spa, retail space, clinic to name only a few!! Step into a space designed for productivity and aesthetic pleasure. The interiors are thoughtfully designed with modern professionals in mind, boasting ample natural light, and an open layout that fosters collaboration and creativity. Furthermore, our commitment to eco-friendly practices is reflected in our energy-efficient systems and waste reduction initiatives. Building is also pre-wired for Bell Fibe. (id:27476)

Property Highlights

MLS® Number
X12786626
Type
Retail
Community Name
332 - Central
Land Size
77 x 135 FT

Building

Square Footage
1200 sqft
Fireplace Present
No
Basement Type
Basement Features
Building Heating Type
Forced air
Heating Fuel
Natural gas
Building Cooling Type
Fully air conditioned

Utilities

Water
Municipal water

Location

Learn more about this property
Listing provided by:
Century 21 Heritage House LTD
MLS® number:
X12786626
Agent:
Barbara Scarlett
*Indicates required field
Name is required
Email is required
Please enter a valid phone number (e.g., 416-111-1111).