27 Scottsdale Street, London South, Ontario N6P 1E5

Listed for:
$1,364,900
4 beds
4 baths
Listed 10 days ago
House for rent: 27 Scottsdale Street, London South, Ontario N6P 1E5

View all 42 photos

About

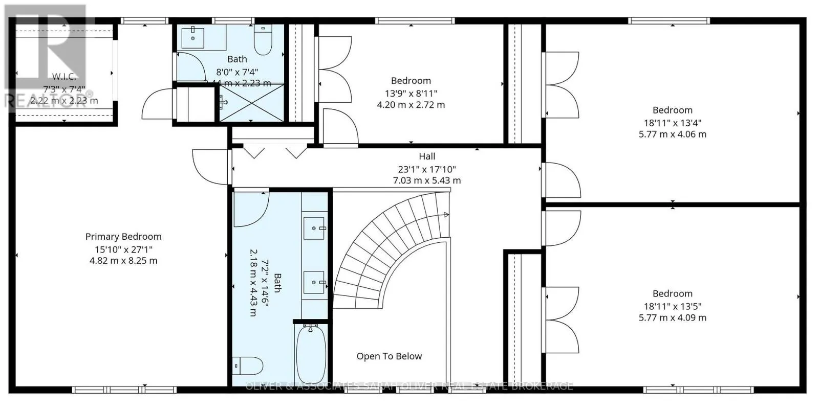
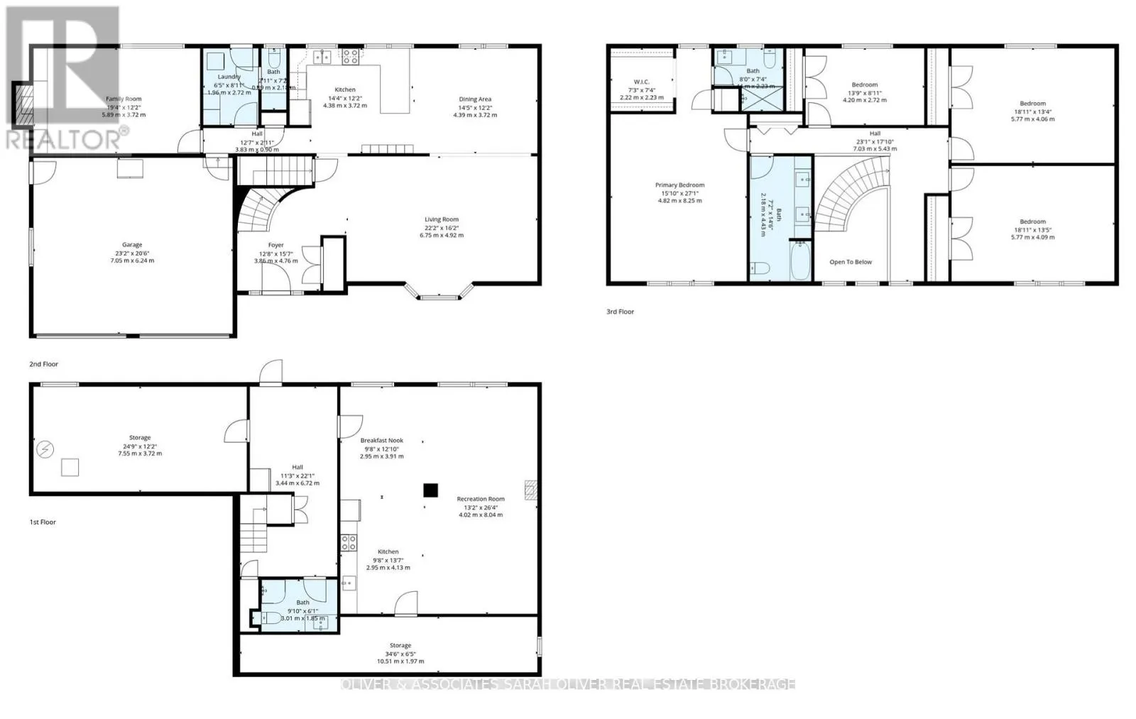
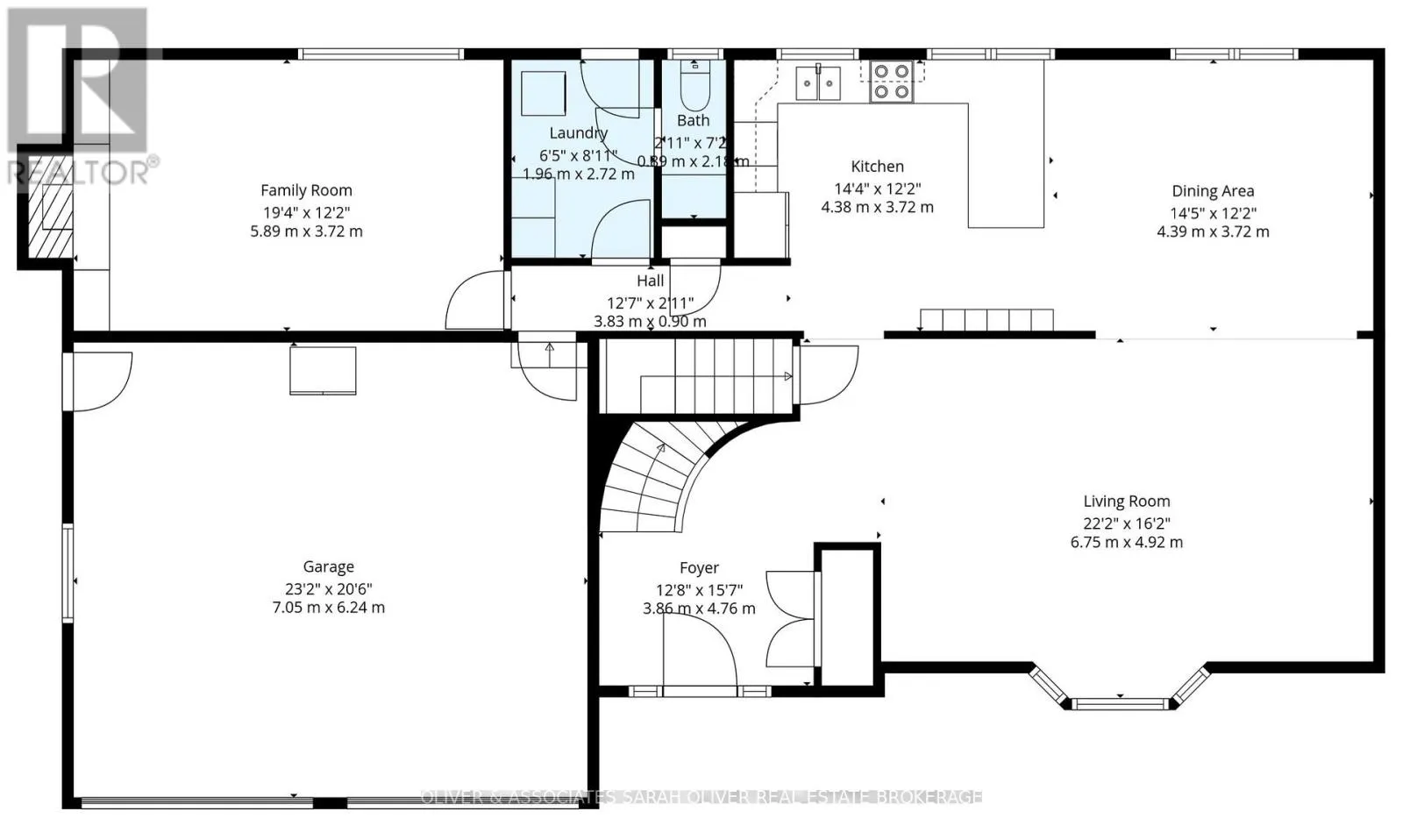
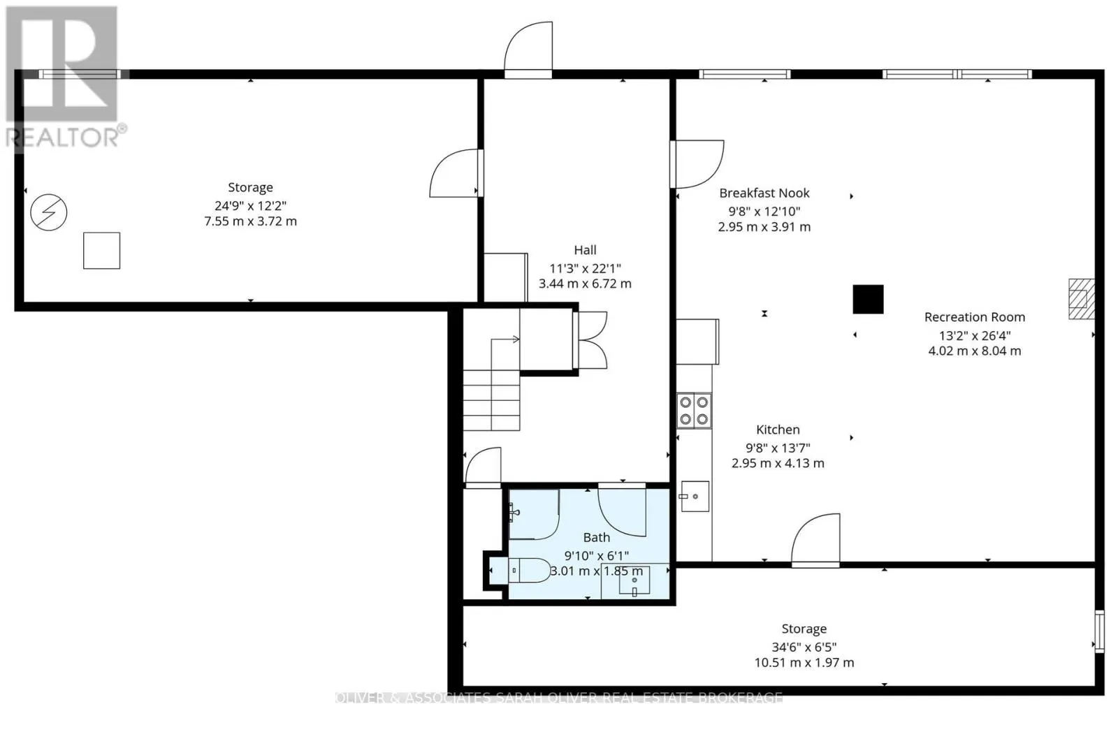
Cross Streets: Colonel Talbot and Southland. ** Directions: Take Colonel Talbot South to Southland, Left on Southland and Right on Scottsdale, property is on the South side of Scottsdale. Set on a beautifully treed half-acre lot in an exclusive small community setting, this exceptional two-storey residence offers the perfect balance of privacy, luxury, and convenience. Surrounded by mature trees and lush landscaping, the backyard feels like a private resort - complete with an inground pool, expansive entertaining space, pool house and covered patio. Peaceful seclusion rarely found so close to the city. Inside, the home features four generous bedrooms and thoughtfully updated living spaces designed for both everyday comfort and elegant entertaining. The gourmet kitchen is beautifully appointed with quality cabinetry, premium finishes, and large windows overlooking the private grounds. Updated bathrooms offer spa-inspired finishes and timeless sophistication. The fully finished lower level adds incredible versatility and includes a convenient walk-up to the backyard. This would be ideal for extended family living, guests, or seamless indoor-outdoor entertaining. Expansive windows throughout flood the home with natural light, enhancing its airy, upscale feel. This is a rare opportunity to enjoy estate-style living on a half acre, with resort-like amenities, in a welcoming community just moments from shopping, major highways and premier golf destinations. (id:27476)

Property Highlights

MLS® Number
X12805218
Type
Single Family
Community Name
South V
Ownership Type
Freehold
Land Size
100 x 225 FT|1/2 - 1.99 acres
Parking Space Total
8

Building

Building Type
House
Storeys
2.00
Square Footage
3000 - 3500 sqft
Bathrooms Total
4
Bedrooms Above Ground
4
Bedrooms Total
4
Exterior Finish
Brick
Fireplace Present
No
Basement Type
Full, N/A, N/A, N/A (Finished)
Basement Features
Walk-up, Separate entrance
Building Heating Type
Forced air
Heating Fuel
Natural gas
Building Cooling Type
Central air conditioning

Utilities

Water
Municipal water
Utility Sewer
Septic System

Location

Learn more about this property
Listing provided by:
OLIVER & ASSOCIATES SARAH OLIVER REAL ESTATE BROKERAGE
MLS® number:
X12805218
Agent:
Sarah Oliver
*Indicates required field
Name is required
Email is required
Please enter a valid phone number (e.g., 416-111-1111).

Community Spotlight: Homes For sale in Your Neighborhood