Unit 3 - 5690 14th Avenue, Markham, Ontario L3R 4B7

Listed for:
$1
0 beds
0 baths
Listed 13 days ago
Retail for rent: Unit 3 - 5690 14th Avenue, Markham, Ontario L3R 4B7

View all 6 photos

Learn more about this property
Listing provided by:
HOMELIFE TRADEMAX REALTY INC.
MLS® number:
N12463093
Agent:
Ammad Alam
*Indicates required field
Name is required
Email is required
Please enter a valid phone number (e.g., 416-111-1111).

About

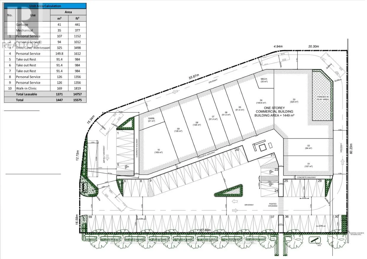
14th & McCowan/Markham Rd Introducing Markham Common Square!A brand-new boutique stand-alone commercial plaza on a full acre in the heart of Markham's thriving Middlefield neighborhood. This offering features a 3,498 sq. ft. Daycare/Montessori-ready unit with an additional 1,184 sq. ft. private outdoor play area - perfect for early childhood education or similar uses.Located on 14th Avenue, directly across from the Aaniin Community Centre and Remington's Victory Green community, this modern retail hub offers 17 ft ceilings, large storefront windows, rear door access, and ample surface parking.Ideal for Daycare, Montessori, Medical, Dental, Pharmacy, Grocery, Restaurant, Spa, or Personal Services.Excellent visibility and easy access to Highways 407, 404, and 401.Occupancy expected Late Summer/Fall 2026. Groundbreaking October 2025.Only 10 units available - secure your spot in one of Markham's most desirable commercial destinations today! (id:27476)

Property Highlights

MLS® Number
N12463093
Type
Retail
Community Name
Middlefield
Land Size
290.03 FT

Building

Building Type
Retail
Square Footage
4682 sqft
Fireplace Present
No
Basement Type
Basement Features
Building Heating Type
Forced air
Heating Fuel
Natural gas
Building Cooling Type
Fully air conditioned

Utilities

Water
Municipal water

Location