Unit 4 - 5690 14th Avenue, Markham, Ontario L3R 4B7

Listed for:
$1
0 beds
0 baths
Listed 8 days ago
Retail for rent: Unit 4 - 5690 14th Avenue, Markham, Ontario L3R 4B7

View all 6 photos

Learn more about this property
Listing provided by:
HOMELIFE TRADEMAX REALTY INC.
MLS® number:
N12463098
Agent:
Ammad Alam
*Indicates required field
Name is required
Email is required
Please enter a valid phone number (e.g., 416-111-1111).

About

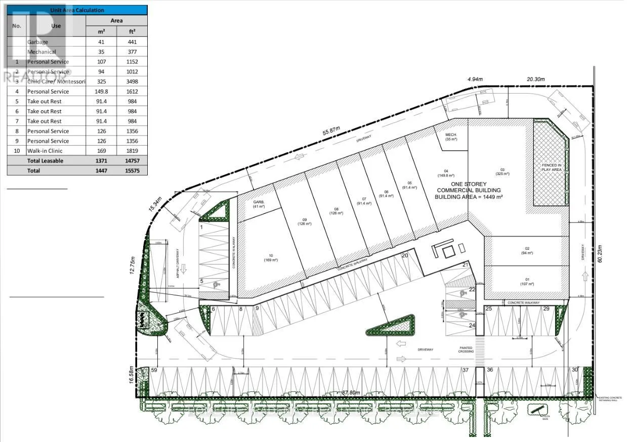
14th Ave & McCowan Rd Introducing Markham Common Square - the hottest new stand-alone boutique commercial plaza coming to the heart of Markham's thriving Middlefield community!This brand-new, high-exposure plaza sits on a full acre on 14th Avenue, directly across from the Aaniin Community Centre and Remington's Victory Green - a location that simply can't be beat!Offering a 1,612 sq. ft. premium retail unit with 17 ft ceilings, expansive glass frontage, rear access, and ample surface parking - perfect for a restaurant franchise, daycare, medical office, dental clinic, pharmacy, spa, grocery, or personal service business. Unmatched visibility. Prime traffic flow. Endless potential.With only 10 units available (ranging from 984 sq. ft. to 5,000 sq. ft.), this exclusive opportunity will not last long! Groundbreaking October 2025 Occupancy Late Summer/Fall 2026 Easy access to Highways 407, 404 & 401 Secure your unit today - spaces like this in Markham are gone before they even hit the market! (id:27476)

Property Highlights

MLS® Number
N12463098
Type
Retail
Community Name
Middlefield
Land Size
290.03 FT

Building

Building Type
Retail
Square Footage
1612 sqft
Fireplace Present
No
Basement Type
Basement Features
Building Heating Type
Forced air
Heating Fuel
Natural gas
Building Cooling Type
Fully air conditioned

Utilities

Water
Municipal water

Location