10 - 5690 14th Avenue, Markham, Ontario L3R 4B7

Listed for:
$1
0 beds
0 baths
Listed 12 days ago
Retail for rent: 10 - 5690 14th Avenue, Markham, Ontario L3R 4B7

View all 6 photos

Learn more about this property
Listing provided by:
HOMELIFE TRADEMAX REALTY INC.
MLS® number:
N12463118
Agent:
Ammad Alam
*Indicates required field
Name is required
Email is required
Please enter a valid phone number (e.g., 416-111-1111).

About

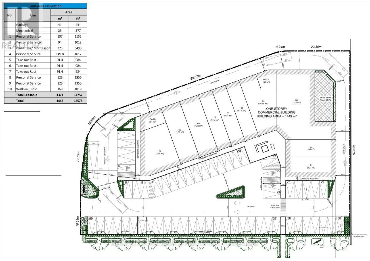
14th & McCowan/Markham Rd Introducing Markham Common Square - Markham's Most Anticipated Commercial Destination!Discover the hottest new stand-alone boutique plaza in the heart of Markham's vibrant Middlefield community!This brand-new, high-exposure commercial development sits on a full acre along 14th Avenue, directly across from the Aaniin Community Centre and Remington's Victory Green - a location that simply can't be beat!This offering features a 1,819 sq. ft. premium retail unit, ideal for medical, pharmacy, or similar professional uses. It can also be combined with Unit 9 for a total of 3,175 sq. ft. Enjoy 17 ft ceilings, expansive glass frontage, rear door access, and ample surface parking - perfect for a restaurant franchise, daycare, medical clinic, dental office, spa, grocery, or personal services. Unmatched visibility. Prime traffic flow. Endless potential.With only 10 units available (from 984 sq. ft. to 5,000 sq. ft.), this exclusive opportunity won't last long! Groundbreaking October 2025 Occupancy Late Summer/Fall 2026 Easy Access to Highways 407, 404 & 401 Secure your unit today - prime spaces in Markham like this are gone before they hit the market! (id:27476)

Property Highlights

MLS® Number
N12463118
Type
Retail
Community Name
Middlefield
Land Size
290.03 FT

Building

Building Type
Retail
Square Footage
1819 sqft
Fireplace Present
No
Basement Type
Basement Features
Building Heating Type
Forced air
Heating Fuel
Natural gas
Building Cooling Type
Fully air conditioned

Utilities

Water
Municipal water

Location