13 Kellestine Drive, Strathroy-Caradoc, Ontario N7G 0C5

Listed for:
$459,900
3 beds
2 baths
Listed 135 days ago
House for rent: 13 Kellestine Drive, Strathroy-Caradoc, Ontario N7G 0C5

View all 35 photos

About

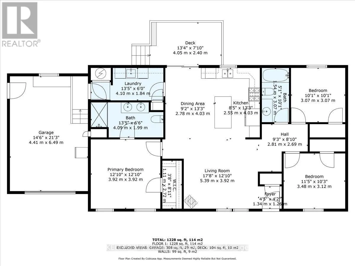
Cross Streets: Saxton Rd. & Bond St. ** Directions: From Carroll St. E head South on Saxton Rd., Turn Right onto Bond St., Right onto Kellestine Dr. House sits on the right hand side. Welcome to the newest home in Twin Elm, a private, rent-controlled, adult-lifestyle land-lease community just a short walk to shopping and Caradoc Sands Golf Club.This 5 year old, energy-efficient Titan modular home sits on a clean, dry slab foundation crawlspace and includes a whole-home surge protector, 10kW Generac generator, and gutter leaf guards on all eavestroughs for low-maintenance living. Step in from the covered porch to a bright, open-concept layout with luxury vinyl plank flooring. The living room features a freestanding natural gas Valour fireplace, while the kitchen offers Whirlpool appliances, ceramic backsplash, pantry with pullouts, island with seating, and pot drawers. Convenient laundry/mechanical room with extra pantry space nearby. The primary bedroom includes a walk-in closet and ensuite with double sinks and a large shower. Two additional bedrooms and a 4-piece main bath are thoughtfully separated from the primary suite. The oversized R-12 insulated garage/workshop features a workbench and cupboards. A new sliding patio door leads to a large deck with built-in seating, BBQ pad, privacy-screened patio with retractable awning, and a fully fenced backyard-ideal for pets and entertaining. Enjoy the 8x8 pine shed, sandpoint well for irrigation, perennial gardens, and cedar-sided raised vegetable bed. The community clubhouse offers a hall, kitchen, gym, darts, billiards, shuffleboard, and weekly events. On-site RV/boat storage is available for an additional fee. Don't miss this opportunity to enjoy modern living, peace of mind, and a vibrant community lifestyle in Twin Elm Estates. (id:27476)

Property Highlights

MLS® Number
X12655182
Type
Single Family
Community Name
SE
Ownership Type
Leasehold/Leased Land
Parking Space Total
4

Building

Building Type
House
Storeys
1.00
Square Footage
1100 - 1500 sqft
Bathrooms Total
2
Bedrooms Above Ground
3
Bedrooms Total
3
Amenities
Fireplace(s) Hospital
Exterior Finish
Vinyl siding
Fireplace Present
Yes
Basement Type
None
Basement Features
Building Heating Type
Forced air
Heating Fuel
Natural gas
Building Cooling Type
Central air conditioning

Utilities

Water
Municipal water
Power
Generator
Utility Sewer
Sanitary sewer

Location

Learn more about this property
Listing provided by:
KELLER WILLIAMS LIFESTYLES
MLS® number:
X12655182
Agent:
Daniel Kiekens
*Indicates required field
Name is required
Email is required
Please enter a valid phone number (e.g., 416-111-1111).