208 Foxborough Place, Thames Centre, Ontario N0M 2P0

Listed for:
$1,039,900
3 beds
2 baths
Listed 307 days ago
House for rent: 208 Foxborough Place, Thames Centre, Ontario N0M 2P0

View all 8 photos

About

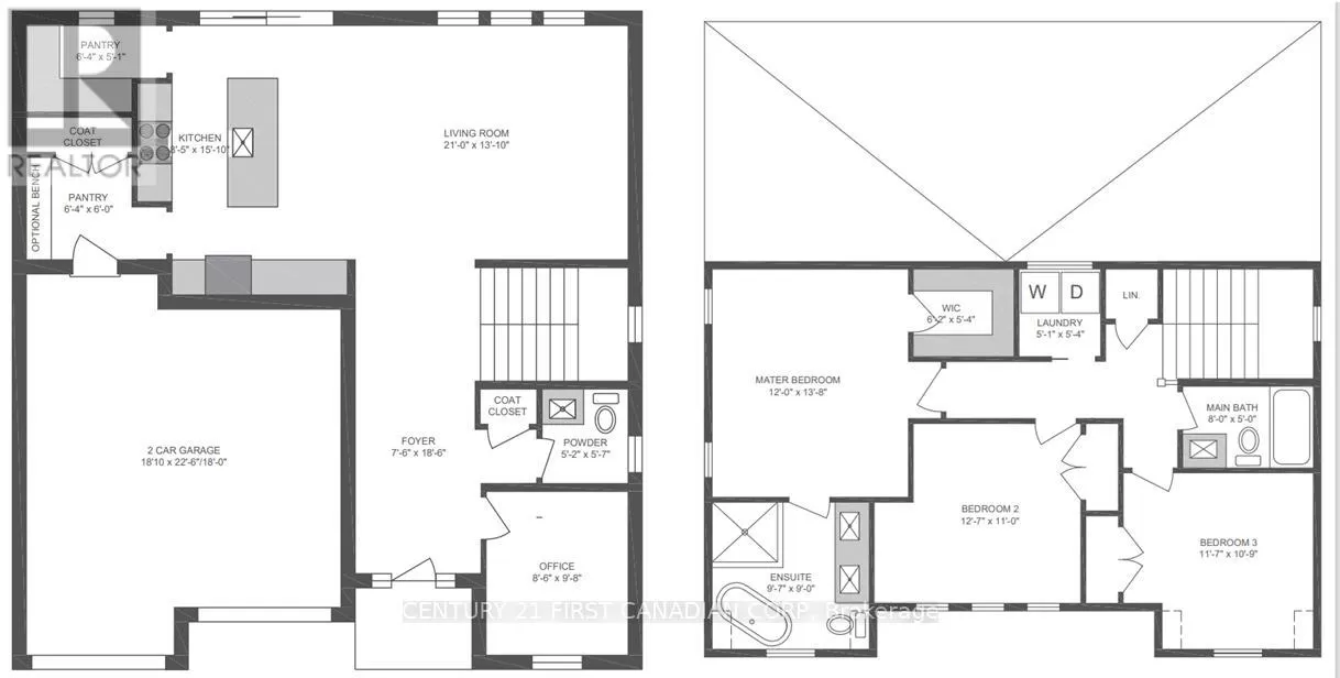
Cross Streets: Agnes Street. ** Directions: Take Medway road into Thorndale (turns into Thorndale Road) make a right onto Agnes Street, make a left onto Foxborough Place. Royal Oak Homes proudly unveils The Brighton, a stunning new TO BE BUILT design inspired by the timeless charm of Nashville architecture. Available in three distinctive variations, this home ranges from 1,910 to 2,684 sq. ft. The exterior showcases a beautiful combination of stone, Hardie board, and stucco, delivering the signature curb appeal Royal Oak is known for. Steep rooflines enhance the home's stately presence, setting the tone for the exceptional design found within. Inside, you'll find an open-concept layout ideal for entertaining, featuring a spacious kitchen with a walk-in pantry and an expansive great room. Oversized windows in every room flood the home with natural light, creating a bright and inviting atmosphere. Upstairs, the primary suite offers a private retreat with a large walk-in closet and a spa-like 5-piece ensuite. Additional generously sized bedrooms and a conveniently located laundry room round out the upper level. Situated in a prime location near top-rated schools, shopping, parks, playgrounds, and scenic walking trails, this home blends luxury with everyday convenience. High-end finishes include hardwood flooring, ceramic tile in all wet areas, quartz countertops, a poplar staircase with iron spindles, 9 ft. ceilings on the main level, and a custom glass-enclosed ceramic tile shower just to name a few. Additional floor plans and lots available. Photos are for illustrative purposes only; each home reflects unique design and client selections. (id:27476)

Property Highlights

MLS® Number
X12117475
Type
Single Family
Community Name
Thorndale
Ownership Type
Freehold
Land Size
47.9 x 142 FT|under 1/2 acre
Parking Space Total
4

Building

Building Type
House
Storeys
2.00
Square Footage
1500 - 2000 sqft
Bathrooms Total
2
Bedrooms Above Ground
3
Bedrooms Total
3
Amenities
Fireplace(s)
Exterior Finish
Concrete, Stucco
Fireplace Present
Yes
Basement Type
Full
Basement Features
Building Heating Type
Forced air
Heating Fuel
Natural gas
Building Cooling Type
Central air conditioning

Utilities

Water
Municipal water
Utility Sewer
Sanitary sewer

Room Layout

Bedroom
Second level
3.71 m x 3.48 m
Bathroom
Second level
2.59 m x 1.6 m
Laundry room
Second level
1.47 m x 1.68 m
Primary Bedroom
Second level
3.53 m x 4.29 m
Other
Second level
2.84 m x 2.95 m
Bedroom
Second level
3.71 m x 3.48 m
Office
Main level
2.67 m x 3.23 m
Bathroom
Main level
1.73 m x 1.73 m
Great room
Main level
5.05 m x 4.27 m
Other
Main level
3.86 m x 4.95 m
Pantry
Main level
2.59 m x 1.68 m
Mud room
Main level
2.59 m x 2.51 m

Location

Learn more about this property
Listing provided by:
CENTURY 21 FIRST CANADIAN CORP
MLS® number:
X12117475
Agent:
Jenny Drygas
*Indicates required field
Name is required
Email is required
Please enter a valid phone number (e.g., 416-111-1111).

Street Spotlight - For sale