Lot 20 Foxborough Place, Thames Centre, Ontario N0M 2P0

Listed for:
$1,099,900
3 beds
3 baths
Listed 72 days ago
House for rent: Lot 20 Foxborough Place, Thames Centre, Ontario N0M 2P0

View all 11 photos

About

Cross Streets: Agnes St. ** Directions: Take Medway Road towards Thorndale, Medway Road turns into Thorndale Rod, turn right onto Fairview, turn right onto Foxborough. Welcome to your future home in the heart of Thorndale's most sought-after community! Currently under construction and ready for possession in March 2026, this beautiful 3-bedroom, 2.5-bath home combines modern design, quality craftsmanship, and thoughtful functionality. Situated on a lot backing onto no rear neighbours, this home offers privacy, space, and comfort. Step inside to discover 10-foot ceilings on the main level and 9-foot ceilings upstairs, creating a bright and open atmosphere throughout. The living room features soaring 12-foot ceilings and large windows that fill the space with natural light. The gourmet kitchen is complete with quartz countertops, custom cabinetry, and direct access to a hidden walk-in pantry, perfect for extra storage and prep space. The bumped-out dining area overlooks the backyard, while the mudroom adds convenience for busy households. Upstairs, you'll find three spacious bedrooms, a laundry room, and a luxurious primary suite with a private ensuite and generous closet space. A double-car garage completes this impressive layout. Located in a welcoming community close to walking trails, with easy highway access and just 10 minutes to Masonville Mall, this home perfectly balances small-town charm with modern convenience. More plans and lots are available. Photos are from previous models for illustrative purposes; each model differs in design and client selections. (id:27476)

Property Highlights

MLS® Number
X12472576
Type
Single Family
Community Name
Thorndale
Ownership Type
Freehold
Land Size
51.1 x 132.7 FT|under 1/2 acre
Parking Space Total
4

Building

Building Type
House
Storeys
2.00
Square Footage
2000 - 2500 sqft
Bathrooms Total
3
Bedrooms Above Ground
3
Bedrooms Total
3
Amenities
Fireplace(s) Park, Schools
Exterior Finish
Brick Facing
Fireplace Present
Yes
Basement Type
N/A (Unfinished)
Basement Features
Building Heating Type
Forced air
Heating Fuel
Electric
Building Cooling Type
Central air conditioning

Utilities

Water
Municipal water
Utility Sewer
Sanitary sewer

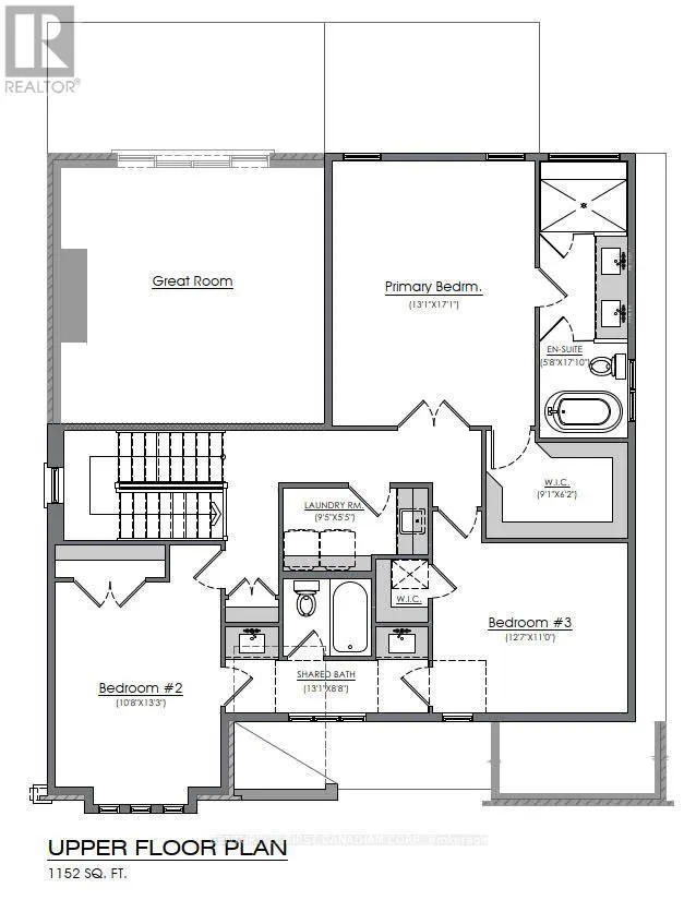
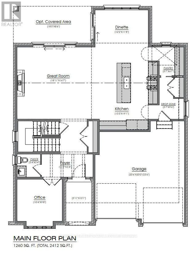
Room Layout

Office
Main level
3.16 m x 2.98 m
Living room
Main level
5.79 m x 5.09 m
Dining room
Main level
3.71 m x 2.56 m
Kitchen
Main level
3.71 m x 5.09 m
Pantry
Main level
1.55 m x 1.52 m
Mud room
Main level
1.55 m x 1.52 m
Bedroom 3
Upper Level
3.68 m x 3.59 m
Bathroom
Upper Level
3.01 m x 1.76 m
Laundry room
Upper Level
3.01 m x 1.76 m
Primary Bedroom
Upper Level
4.02 m x 4.63 m
Bathroom
Upper Level
1.76 m x 5.24 m
Bedroom 2
Upper Level
3.38 m x 4.02 m

Location

Learn more about this property
Listing provided by:
CENTURY 21 FIRST CANADIAN CORP
MLS® number:
X12472576
Agent:
Jenny Drygas
*Indicates required field
Name is required
Email is required
Please enter a valid phone number (e.g., 416-111-1111).

Street Spotlight - For sale