216 Foxborough Place, Thames Centre, Ontario N0M 2P0

Listed for:
$799,900
1 beds
2 baths
Listed 202 days ago
House for rent: 216 Foxborough Place, Thames Centre, Ontario N0M 2P0

View all 9 photos

Learn more about this property
Listing provided by:
CENTURY 21 FIRST CANADIAN CORP
MLS® number:
X12218973
Agent:
Jenny Drygas
*Indicates required field
Name is required
Email is required
Please enter a valid phone number (e.g., 416-111-1111).

About

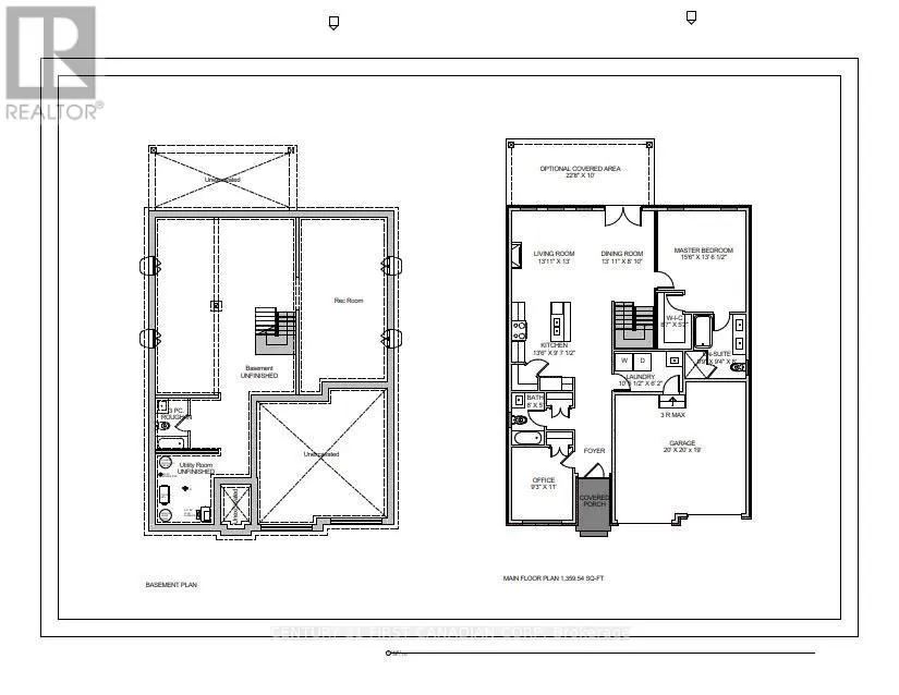
Cross Streets: Agnes Street. ** Directions: Take Medway Road towards Thorndale (turns into Thorndale Road), make a right onto Fairview, make a right onto Foxborough Place. Discover exceptional value in this TO BE BUILT bungalow located in the growing community of Thorndale. Offering 1,360 sq. ft. of thoughtfully designed living space, this home features a bright and airy open concept layout with seamless flow between the kitchen, living, and dining areas, perfect for both everyday living and entertaining. Enjoy up-to-date finishes throughout. The spacious primary suite offers a luxurious 5-piece ensuite and generous walk-in closet, while a separate office or flex room provides a quiet space for work or hobbies. With attractive curb appeal, a welcoming front porch, and smart design, this home is an ideal choice for first-time buyers, downsizers, or investors. Located just minutes from London, with easy access to parks, trails, and local amenities, this property offers the perfect balance of small-town charm and modern convenience. Don't miss your chance to own a brand-new home at an affordable price just minutes from London. Photos are from a previous model for illustrative purposes. (id:27476)

Property Highlights

MLS® Number
X12218973
Type
Single Family
Community Name
Thorndale
Ownership Type
Freehold
Land Size
47.9 x 143.7 FT|under 1/2 acre
Parking Space Total
2

Building

Building Type
House
Storeys
1.00
Square Footage
1100 - 1500 sqft
Bathrooms Total
2
Bedrooms Above Ground
1
Bedrooms Total
1
Amenities
Fireplace(s)
Exterior Finish
Stucco, Stone
Fireplace Present
Yes
Basement Type
N/A (Unfinished)
Basement Features
Building Heating Type
Forced air
Heating Fuel
Natural gas
Building Cooling Type
Central air conditioning

Utilities

Water
Municipal water
Utility Sewer
Sanitary sewer

Room Layout

Office
Main level
2.83 m x 3.35 m
Bathroom
Main level
2.43 m x 1.52 m
Kitchen
Main level
4.14 m x 2.95 m
Living room
Main level
3.99 m x 3.96 m
Dining room
Main level
3.99 m x 2.46 m
Primary Bedroom
Main level
4.75 m x 4.14 m
Bathroom
Main level
3 m x 2.43 m
Laundry room
Main level
3.2 m x 1.88 m

Location

Street Spotlight - For sale