105 Harvest Lane, Thames Centre, Ontario N0L 1G2

Listed for:
$1,475,000
6 beds
5 baths
Listed 4 days ago
House for rent: 105 Harvest Lane, Thames Centre, Ontario N0L 1G2

View all 49 photos

About

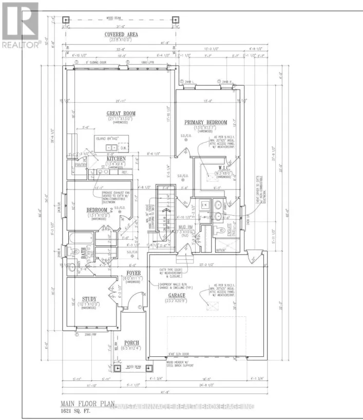
Cross Streets: Boardwalk Way and Harvest Lane. ** Directions: Coming from 401 to Mill Rd, take a right onto Boardwalk Way and a right onto Harvest Lane. A statement of refined luxury, this impeccably upgraded residence offers an exceptional living experience in one of Dorchester's most desirable enclaves. Boasting 6 bedrooms and 4.5 bathrooms and offering over 4400 sq ft of finished living space. Dramatic ceiling heights with 10' main floor ceilings and 9' second floor ceilings set the tone for elegant, light-filled interiors designed for both everyday comfort and elevated entertaining. The main level unfolds through a welcoming foyer into a private home office, a formal dining space, complemented by an expansive butler's pantry and a truly bespoke chef's kitchen featuring an impressive 8' island, quartz countertops, and striking floor-to-ceiling custom cabinetry. Oversized patio doors lead to a covered rear porch, seamlessly blending indoor and outdoor living, while the great room's fireplace anchors the space with warmth and sophistication. A thoughtfully designed mudroom and stylish powder room complete the main floor. The second level is crowned by a serene primary retreat with a custom walk-in wardrobe and a spa-inspired ensuite boasting a freestanding soaker tub, custom tiled shower, dual vanities, and a private water closet. The second level is further enhanced by four additional bedrooms, including a private suite with its own ensuite and walk-in closet, while two bedrooms share an elegantly designed Jack and Jill bathroom. A spacious laundry room completes this level, offering both practicality and refined design. The fully finished lower level with external walk-up access offers outstanding versatility, featuring a large recreation room, kitchen with washer/dryer, bedroom, bathroom and generous storage-perfect for a private in-law suite or potential separate basement rental suite. Ideally positioned just minutes to Highway 401 and London, this extraordinary home delivers luxury, functionality, and lifestyle in perfect harmony, too many upgrades to list, this home is a must see. (id:27476)

Property Highlights

MLS® Number
X12781792
Type
Single Family
Community Name
Dorchester
Ownership Type
Freehold
Land Size
50.1 x 115.2 FT
Parking Space Total
4

Building

Building Type
House
Storeys
2.00
Square Footage
3000 - 3500 sqft
Bathrooms Total
5
Bedrooms Above Ground
5
Bedrooms Total
6
Amenities
Schools, Place of Worship, Park
Exterior Finish
Stone, Brick
Fireplace Present
Yes
Basement Type
Full, N/A, N/A, N/A, N/A (Finished)
Basement Features
Separate entrance, Walk-up, Apartment in basement
Building Heating Type
Forced air
Heating Fuel
Natural gas
Building Cooling Type
Central air conditioning

Utilities

Water
Municipal water
Utility Sewer
Sanitary sewer

Room Layout

Bathroom
Second level
3.8 m x 3.08 m
Bedroom
Second level
5.17 m x 3.08 m
Bedroom
Second level
3.69 m x 3.5 m
Bathroom
Second level
3.06 m x 1.66 m
Bedroom
Second level
4.15 m x 2.94 m
Laundry room
Second level
2.62 m x 1.98 m
Primary Bedroom
Second level
6.13 m x 4.25 m
Bathroom
Second level
4.25 m x 3.82 m
Bedroom
Second level
3.87 m x 3.64 m
Recreational, Games room
Lower level
7.94 m x 7.59 m
Bedroom
Lower level
5.91 m x 3 m
Bathroom
Lower level
3.41 m x 2.1 m
Kitchen
Lower level
5.93 m x 4.9 m
Foyer
Main level
3.66 m x 2.3 m
Office
Main level
3.39 m x 3.13 m
Dining room
Main level
4.27 m x 3.62 m
Kitchen
Main level
6.64 m x 4.25 m
Great room
Main level
5.02 m x 4.3 m
Mud room
Main level
3.48 m x 2.8 m
Bathroom
Main level
1.92 m x 1.42 m

Location

Learn more about this property
Listing provided by:
SUTTON GROUP PREFERRED REALTY INC.
MLS® number:
X12781792
Agent:
June Power
*Indicates required field
Name is required
Email is required
Please enter a valid phone number (e.g., 416-111-1111).

Street Spotlight - For sale