1981 Mccaskill Drive, Crossfield, Alberta T0M 0S0

Listed for:
$498,900
3 beds
3 baths
Listed 42 days ago
House for rent: 1981 Mccaskill Drive, Crossfield, Alberta T0M 0S0

View all 35 photos

Learn more about this property
Listing provided by:
4th Street Holdings Ltd.
MLS® number:
A2195073
Agent:
Jay Bhinder
*Indicates required field
Name is required
Email is required
Please enter a valid phone number (e.g., 416-111-1111).

About

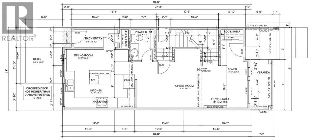
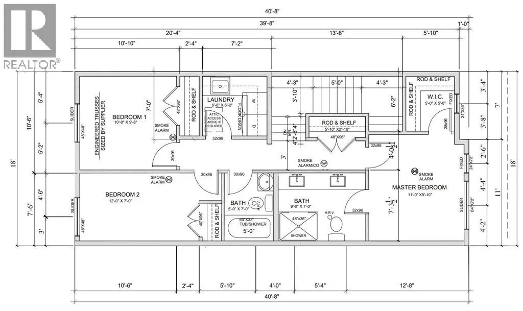
Experience the beauty of this custom-crafted home set in the peaceful surroundings of Crossfield. This pre-construction laned home offers 1,443 square feet of well-designed space across two stories, with 9FT ceilings on every level to enhance the open feel. The home includes a front porch and a backyard deck, ideal for spending time outdoors or hosting family gatherings.Inside, the main floor’s open concept design blends style with functionality. The kitchen features a breakfast bar, quartz countertops, stainless steel appliances, and textured cabinets. Natural light fills the great room, which includes a linear electric fireplace for added comfort. Durable vinyl plank (LVP) flooring, maple accents, and black exterior dual-pane windows provide a modern finish throughout the home. A conveniently located 2-piece powder room completes the main floor.Upstairs, the primary suite includes a 4-piece ensuite and a walk-in closet. Two additional bedrooms provide space for family or guests. A full bathroom and a laundry room with a sink add everyday convenience.Additional features include a double detached garage, fully landscaped backyard, and a roughed-in basement with a separate side entrance, offering potential for future development. Custom finishing options are also available.Located in Crossfield’s Iron Landing community, this home is near parks, playgrounds, shops, dining, and top-rated schools like Crossfield Elementary and W.G. Murdoch School. It’s under 10 minutes to Airdrie, 25 minutes to Calgary, and close to Highway 2 for commuting.Photos are from a previous build; Don’t wait—reach out to make this incredible property yours today! (id:27476)

Property Highlights

MLS® Number
A2195073
Type
Single Family
Ownership Type
Freehold
Land Size
3432.52 sqft|0-4,050 sqft
Parking Space Total
2

Building

Building Type
House
Storeys
2.00
Square Footage
1443 sqft
Bathrooms Total
3
Bedrooms Above Ground
3
Bedrooms Total
3
Amenities
Park, Playground, Recreation Nearby, Schools, Shopping
Exterior Finish
Concrete, Stone, Vinyl siding
Fireplace Present
Yes
Basement Type
Full (Unfinished)
Basement Features
Separate entrance
Building Heating Type
Other, Forced air
Heating Fuel
Natural gas
Building Cooling Type
None

Location

Street Spotlight - For sale