1975 Mccaskill Drive, Crossfield, Alberta T0M 0S0

Listed for:
$498,900
3 beds
3 baths
Listed 42 days ago
House for rent: 1975 Mccaskill Drive, Crossfield, Alberta T0M 0S0

View all 34 photos

Learn more about this property
Listing provided by:
4th Street Holdings Ltd.
MLS® number:
A2195071
Agent:
Jay Bhinder
*Indicates required field
Name is required
Email is required
Please enter a valid phone number (e.g., 416-111-1111).

About

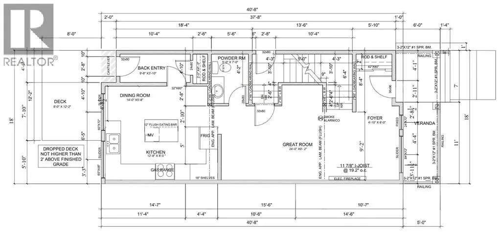
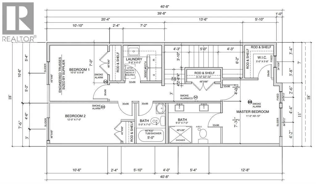
Experience the comfort and style of this custom-built home in the welcoming community of Crossfield. This pre-construction laned home offers 1,443 sq. ft. of smartly designed living space over two stories, with 9-ft ceilings on every level creating a bright, open feel.A charming front porch and a spacious backyard deck set the stage for relaxed summer evenings with family and friends. Inside, the open-concept main floor blends style with function. The kitchen features quartz countertops, a breakfast bar, stainless steel appliances, and textured cabinets. The great room is filled with natural light and highlighted by a sleek electric fireplace. Durable vinyl plank flooring and dual-pane windows add both style and efficiency. A convenient two-piece powder room completes the main floor.Upstairs, the primary suite includes a walk-in closet and a spa-inspired 4-piece ensuite. Two additional bedrooms share another full bathroom, and the laundry room with sink makes everyday living easier.Additional features include a double detached garage, landscaped backyard, and a roughed-in basement with a separate side entrance, giving you options for future development. Buyers also have the opportunity to personalize finishes to match their style.Iron Landing in Crossfield is a family-friendly community with parks, playgrounds, schools, shopping, and dining close by. Crossfield Elementary and W.G. Murdoch School are within walking distance, while Airdrie is less than 10 minutes away and Calgary just 25 minutes. (id:27476)

Property Highlights

MLS® Number
A2195071
Type
Single Family
Ownership Type
Freehold
Land Size
3432.52 sqft|0-4,050 sqft
Parking Space Total
2

Building

Building Type
House
Storeys
2.00
Square Footage
1443 sqft
Bathrooms Total
3
Bedrooms Above Ground
3
Bedrooms Total
3
Amenities
Park, Playground, Recreation Nearby, Schools, Shopping
Exterior Finish
Concrete, Stone, Vinyl siding
Fireplace Present
Yes
Basement Type
Full (Unfinished)
Basement Features
Separate entrance
Building Heating Type
Other, Forced air
Heating Fuel
Natural gas
Building Cooling Type
None

Location

Street Spotlight - For sale