52 Yellow Wood Drive, Paradise, Newfoundland & Labrador A1L 0X8

Listed for:
$250,000
0 beds
0 baths
Listed 77 days ago
52 Yellow Wood Drive, Paradise, Newfoundland & Labrador A1L 0X8

View all 2 photos

Learn more about this property
Listing provided by:
Karwood Sales Inc.
MLS® number:
1285359
Agent:
Frances Reardon
*Indicates required field
Name is required
Email is required
Please enter a valid phone number (e.g., 416-111-1111).

About

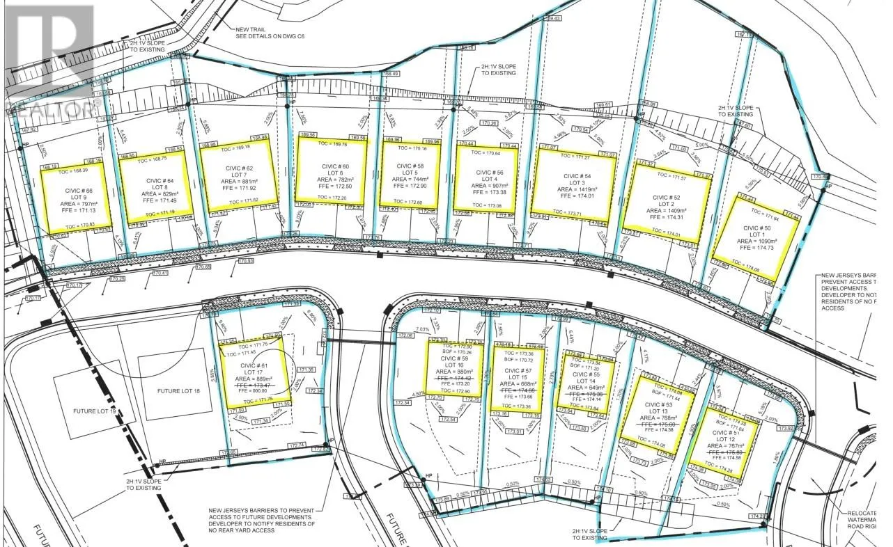
Executive size lot with 70.61 feet frontage located on 52 Yellow Wood Dr in Paradise. Backing on Neils Pond, with walk out basement, rear garden access and backing on walking trail. Located, near schools, shopping centres, daycare, supermarkets, location, location.This what makes the difference when building a new home.Do not miss out on this opportunity. You can buy lot only and build your dream home. Plus HST (id:27476)

Property Highlights

MLS® Number
1285359
Type
Vacant Land
Ownership Type
Freehold
Land Size
63 x 135 x 196|under 1/2 acre

Building

Amenities
Shopping
Fireplace Present
No
Basement Type
Basement Features
Building Heating Type
Heating Fuel
Building Cooling Type

Utilities

Water
Municipal water
Utility Sewer
Municipal sewage system

Location

Street Spotlight - For sale