50 Yellow Wood Drive, Paradise, Newfoundland & Labrador A1L 0X1

Listed for:
$220,000
0 beds
0 baths
Listed 77 days ago
50 Yellow Wood Drive, Paradise, Newfoundland & Labrador A1L 0X1

View all 2 photos

Learn more about this property
Listing provided by:
Karwood Sales Inc.
MLS® number:
1285720
Agent:
Frances Reardon
*Indicates required field
Name is required
Email is required
Please enter a valid phone number (e.g., 416-111-1111).

About

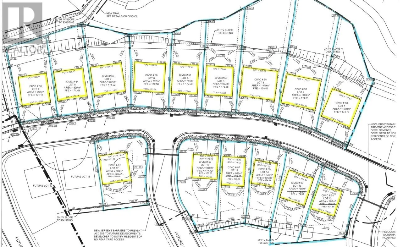
Lot for sale at 50 YellowWood drive Paradise backing on Neils Pond and has 63 feet frontage giving you a walk out basement plus rear garden access.Located close to schools,daycare,walking trails,minuets to major shopping centres, hospital and universities. Plus HST (id:27476)

Property Highlights

MLS® Number
1285720
Type
Vacant Land
Ownership Type
Freehold
Land Size
1090 sq meters|under 1/2 acre

Building

Amenities
Highway, Shopping
Fireplace Present
No
Basement Type
Basement Features
Building Heating Type
Heating Fuel
Building Cooling Type

Utilities

Water
Municipal water
Utility Sewer
Municipal sewage system

Location

Street Spotlight - For sale