54 Yellow Wood Drive, Paradise, Newfoundland & Labrador A1L 1N3

Listed for:
$250,000
0 beds
0 baths
Listed 59 days ago
54 Yellow Wood Drive, Paradise, Newfoundland & Labrador A1L 1N3

View all 2 photos

Learn more about this property
Listing provided by:
Karwood Sales Inc.
MLS® number:
1285712
Agent:
Frances Reardon
*Indicates required field
Name is required
Email is required
Please enter a valid phone number (e.g., 416-111-1111).

About

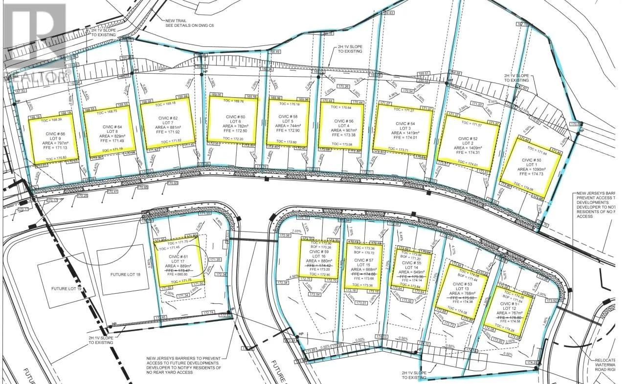
Lot for sale at Yelow Wood drive Paradise and has 70.97feet frontage with a beautiful lot,with walk put basement plus rear garden access.Located close to schools,daycare,walking trails,minuets to major shopping centres, hospital and university Plus HST (id:27476)

Property Highlights

MLS® Number
1285712
Type
Vacant Land
Ownership Type
Freehold
Land Size
1419 sq.meters|.5 - 9.99 acres

Building

Amenities
Recreation, Shopping
Fireplace Present
No
Basement Type
Basement Features
Building Heating Type
Heating Fuel
Building Cooling Type

Utilities

Water
Municipal water
Utility Sewer
Municipal sewage system

Location

Street Spotlight - For sale