55 Yellow Wood Drive, Paradise, Newfoundland & Labrador A1L 0X1

Listed for:
$150,000
0 beds
0 baths
Listed 77 days ago
55 Yellow Wood Drive, Paradise, Newfoundland & Labrador A1L 0X1

View all 2 photos

Learn more about this property
Listing provided by:
Karwood Sales Inc.
MLS® number:
1285762
Agent:
Frances Reardon
*Indicates required field
Name is required
Email is required
Please enter a valid phone number (e.g., 416-111-1111).

About

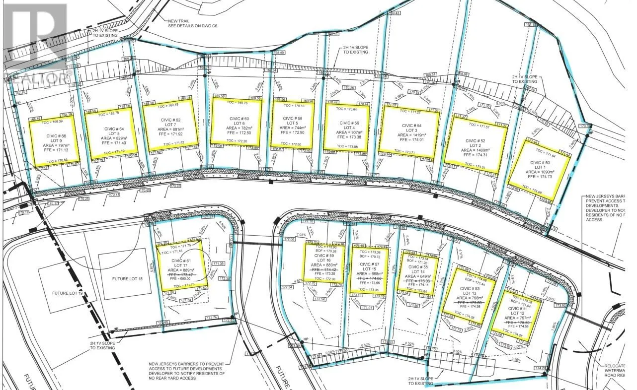
Lot for sale at 55 YellowWood drive Paradise and has55.73 feet frontage with a beautiful flat lot, plus rear garden access.Located close to schools,daycare,walking trails,minuets to major shopping centres, hospital and universities. Plus HST (id:27476)

Property Highlights

MLS® Number
1285762
Type
Vacant Land
Ownership Type
Freehold
Land Size
649 sq meters|under 1/2 acre

Building

Fireplace Present
No
Basement Type
Basement Features
Building Heating Type
Heating Fuel
Building Cooling Type

Utilities

Water
Municipal water
Utility Sewer
Municipal sewage system

Location

Street Spotlight - For sale