Lot 31 White Pine Street, London North, Ontario N6G 3X9

Listed for:
$1,154,900
3 beds
3 baths
Listed 1 day ago
House for rent: Lot 31 White Pine Street, London North, Ontario N6G 3X9

View all 15 photos

About

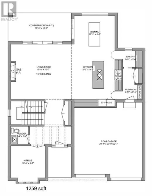
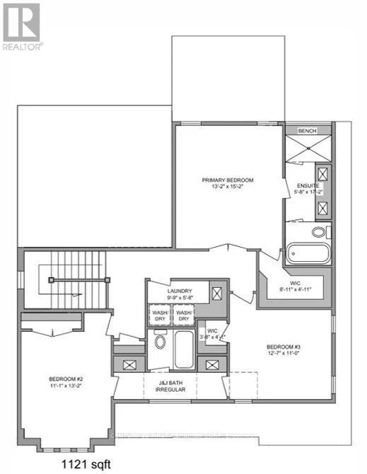
Cross Streets: Wonderland Road North and Eagletrace Drive. ** Directions: Take Wonderland Road North towards Sunningdale Rd, make a left onto Eagletrace Drive, make a right onto Burloak Drive, right onto White Pine Street. Royal Oak Homes proudly presents the Auburn I, one of our newest and most striking models, as a TO BE BUILT home in the prestigious Sunningdale Crossings community in North London. This thoughtfully designed 3-bedroom, 2.5-bath residence with a 2-car garage combines style, functionality, and comfort. The main floor features an open-concept family room with soaring 12-foot ceilings that create an airy, light-filled atmosphere, along with a dining area and kitchen enhanced with arched walkways for added appeal and access to a hidden pantryperfect for entertaining and everyday living. The upper floor hosts all three bedrooms as well as a convenient laundry area. The spacious primary suite includes a dressing room and luxurious 5-piece ensuite, while the two additional bedrooms each enjoy access to their own bathroom, offering privacy and comfort for the whole family. Enjoy quick access to parks, scenic trails, top-rated schools, shopping, and major highways. More plans and lots are available. Photos are from previous models for illustrative purposes; each model differs in design and client selections. (id:27476)

Property Highlights

MLS® Number
X12946054
Type
Single Family
Community Name
North S
Ownership Type
Freehold
Land Size
60 x 124 FT
Parking Space Total
4

Building

Building Type
House
Storeys
2.00
Square Footage
2000 - 2500 sqft
Bathrooms Total
3
Bedrooms Above Ground
3
Bedrooms Total
3
Amenities
Fireplace(s) Park, Public Transit, Golf Nearby
Exterior Finish
Brick, Hardboard
Fireplace Present
Yes
Basement Type
N/A (Unfinished)
Basement Features
Building Heating Type
Forced air
Heating Fuel
Natural gas
Building Cooling Type
Central air conditioning

Utilities

Water
Municipal water
Utility Sewer
Sanitary sewer

Room Layout

Office
Main level
3.16 m x 2.98 m
Dining room
Main level
3.71 m x 2.68 m
Living room
Main level
5.79 m x 5.09 m
Kitchen
Main level
3.71 m x 4.87 m
Pantry
Main level
1.55 m x 2.86 m
Bathroom
Main level
1.95 m x 1.64 m
Bathroom
Upper Level
3.04 m x 1.39 m
Laundry room
Upper Level
3.01 m x 1.76 m
Primary Bedroom
Upper Level
4.02 m x 4.63 m
Bedroom 2
Upper Level
3.38 m x 4.02 m
Bedroom 3
Upper Level
3.68 m x 3.35 m
Bathroom
Upper Level
1.76 m x 5.24 m

Location

Learn more about this property
Listing provided by:
CENTURY 21 FIRST CANADIAN CORP
MLS® number:
X12946054
Agent:
Jenny Drygas
*Indicates required field
Name is required
Email is required
Please enter a valid phone number (e.g., 416-111-1111).

Street Spotlight - For sale