Lot 32 White Pine Street, London North, Ontario N6G 3X9

Listed for:
$1,194,900
4 beds
3 baths
Listed 1 day ago
House for rent: Lot 32 White Pine Street, London North, Ontario N6G 3X9

View all 17 photos

About

Cross Streets: Wonderland Road North and Eagletrace Drive. ** Directions: Take Wonderland Road North towards Sunningdale Rd, make a left onto Eagletrace Drive, make a right onto Burloak Drive, right onto White Pine Street. Royal Oak Homes proudly presents The Luca, a thoughtfully designed 2-storey home featuring 4 bedrooms, 2.5 baths, and a spacious 2-car garage TO BE BUILT in the prestigious Sunningdale Crossings community in North London . With its smart layout and modern finishes, this model perfectly blends style, comfort, and functionality for todays families. The main floor offers a huge living area, dining room, and kitchen, highlighted by a large hidden pantry that extends the full length of the kitchen, a true showpiece for both entertaining and everyday living. A private office on the main floor provides the perfect space for working from home or managing household tasks. The upper level is home to all four bedrooms, including a generous primary suite with a luxurious 5-piece ensuite. A convenient laundry room completes the upstairs, designed to make daily routines easier. Thoughtfully designed with the perfect placement of windows throughout the home including along the staircase. The Luca is filled with natural light, creating a warm and inviting atmosphere in every space. Enjoy quick access to parks, scenic trails, top-rated schools, shopping, and major highways. More plans and lots are available. Photos are from previous models for illustrative purposes; each model differs in design and client selections. (id:27476)

Property Highlights

MLS® Number
X12946058
Type
Single Family
Community Name
North S
Ownership Type
Freehold
Land Size
60 x 124 FT
Parking Space Total
4

Building

Building Type
House
Storeys
2.00
Square Footage
2500 - 3000 sqft
Bathrooms Total
3
Bedrooms Above Ground
4
Bedrooms Total
4
Amenities
Fireplace(s) Park, Public Transit, Golf Nearby
Exterior Finish
Brick, Hardboard
Fireplace Present
Yes
Basement Type
N/A (Unfinished)
Basement Features
Building Heating Type
Forced air
Heating Fuel
Natural gas
Building Cooling Type
Central air conditioning

Utilities

Water
Municipal water
Utility Sewer
Sanitary sewer

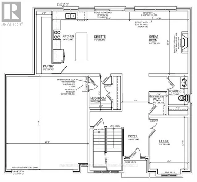
Room Layout

Office
Main level
3.04 m x 3.15 m
Dining room
Main level
4.87 m x 2.5 m
Living room
Main level
4.87 m x 4.52 m
Kitchen
Main level
4.87 m x 3.35 m
Pantry
Main level
4.87 m x 1.21 m
Bathroom
Main level
1.61 m x 1.61 m
Mud room
Main level
1.67 m x 1.67 m
Bedroom 4
Upper Level
3.04 m x 3.04 m
Laundry room
Upper Level
1.82 m x 2.13 m
Bathroom
Upper Level
3.65 m x 3.65 m
Bathroom
Upper Level
2.13 m x 1.54 m
Primary Bedroom
Upper Level
4.26 m x 5.18 m
Bedroom 2
Upper Level
3.47 m x 3.04 m
Bedroom 3
Upper Level
3.04 m x 3.5 m

Location

Learn more about this property
Listing provided by:
CENTURY 21 FIRST CANADIAN CORP
MLS® number:
X12946058
Agent:
Jenny Drygas
*Indicates required field
Name is required
Email is required
Please enter a valid phone number (e.g., 416-111-1111).

Street Spotlight - For sale