Lot 38 White Pine Street, London North, Ontario N6G 3X9

Listed for:
$1,499,900
4 beds
4 baths
Listed 1 day ago
House for rent: Lot 38 White Pine Street, London North, Ontario N6G 3X9

View all 16 photos

About

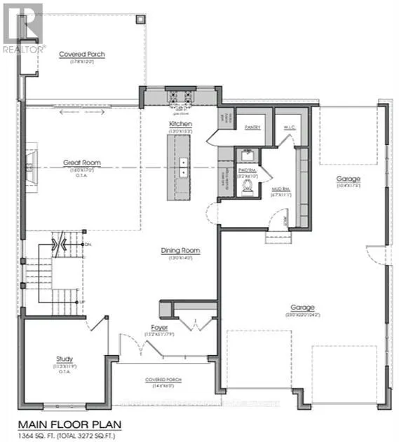
Cross Streets: Wonderland Road North and Eagletrace Drive. ** Directions: Take Wonderland Road North towards Sunningdale Rd, make a left onto Eagletrace Drive, make a right onto Burloak Drive, right onto White Pine Street. Royal Oak Homes proudly presents The Davenport TO BE BUILT in the prestigious Sunningdale Crossings community. This breathtaking two-storey executive residence showcases a perfect balance of classic charm and contemporary sophistication. With its stately brick exterior, bold black accents, and striking rooflines, this home makes an unforgettable first impression. Inside, the thoughtfully designed layout features 4 bedrooms, 3.5 baths, and a spacious 2-car garage. The great room is open to above, with soaring ceilings and expansive windows that flood the home with natural light. The open-concept main floor flows seamlessly between the great room, dining area, and gourmet kitchen, making it ideal for both everyday living and entertaining. Upstairs, all four bedrooms are generously sized, each offering direct access to a bathroom. The highlight is the primary suite, complete with a spa-inspired 5-piece ensuite and walk-in closet, creating the perfect retreat. Enjoy quick access to parks, scenic trails, top-rated schools, shopping, and major highways. More plans and lots are available. Photos are from previous models for illustrative purposes; each model differs in design and client selections. (id:27476)

Property Highlights

MLS® Number
X12946066
Type
Single Family
Community Name
North S
Ownership Type
Freehold
Land Size
58 x 125 FT
Parking Space Total
4

Building

Building Type
House
Storeys
2.00
Square Footage
3000 - 3500 sqft
Bathrooms Total
4
Bedrooms Above Ground
4
Bedrooms Total
4
Amenities
Fireplace(s) Park, Public Transit, Golf Nearby
Exterior Finish
Hardboard, Brick
Fireplace Present
Yes
Basement Type
N/A (Unfinished)
Basement Features
Building Heating Type
Forced air
Heating Fuel
Natural gas
Building Cooling Type
Central air conditioning

Utilities

Water
Municipal water
Utility Sewer
Sanitary sewer

Room Layout

Office
Main level
3.4 m x 3.67 m
Dining room
Main level
3.96 m x 4.26 m
Living room
Main level
4.87 m x 5.18 m
Kitchen
Main level
3.96 m x 4.57 m
Bathroom
Main level
1.58 m x 1.85 m
Mud room
Main level
1.88 m x 3.38 m
Laundry room
Upper Level
2.4 m x 2.04 m
Bathroom
Upper Level
3.41 m x 2.65 m
Bathroom
Upper Level
3.41 m x 1.98 m
Bathroom
Upper Level
2.13 m x 3.44 m
Primary Bedroom
Upper Level
4.14 m x 5.27 m
Bedroom 2
Upper Level
3.41 m x 3.59 m
Bedroom 3
Upper Level
3.41 m x 4.75 m
Bedroom 4
Upper Level
4.69 m x 3.9 m

Location

Learn more about this property
Listing provided by:
CENTURY 21 FIRST CANADIAN CORP
MLS® number:
X12946066
Agent:
Jenny Drygas
*Indicates required field
Name is required
Email is required
Please enter a valid phone number (e.g., 416-111-1111).

Street Spotlight - For sale